【21RV 新闻】近日,中金博朗房车曝光了新车T90租赁版的配置参数,据悉,这款新车售价直接定在19.98万元。目前还没有看到新车内饰图,不过从曝光的配置表还是能看出一些基础的信息的。


新车以中金博朗T90租赁版来命名,可以推测新车外观或将沿用目前在售车型T90的样式,外观尺寸为5940×2050×2930(mm),整备质量2600kg,最大总质量3020kg。新车采用江淮轻卡底盘改装,搭载一款2.0T柴油涡轮增压发动机,匹配6速手动变速箱,最高功率100千瓦,满足国五排放标准,另外还可以升国六。

就底盘而言,中金博朗T90租赁版与T90都是采用的由保定中金博朗房车公司与江淮汽车联合开发的一款房车专用底盘,采用的前双横臂式独立悬架,而且车辆采用双向筒式减震器,滤震效果更强,能够过滤掉大部分来自颠簸路面的冲击,提升乘坐舒适性。后悬架则为承载力更强的钢板弹簧悬架,配合后桥双排轮能够提高底盘整体承载力,应对2600kg的整备质量完全没有问题。

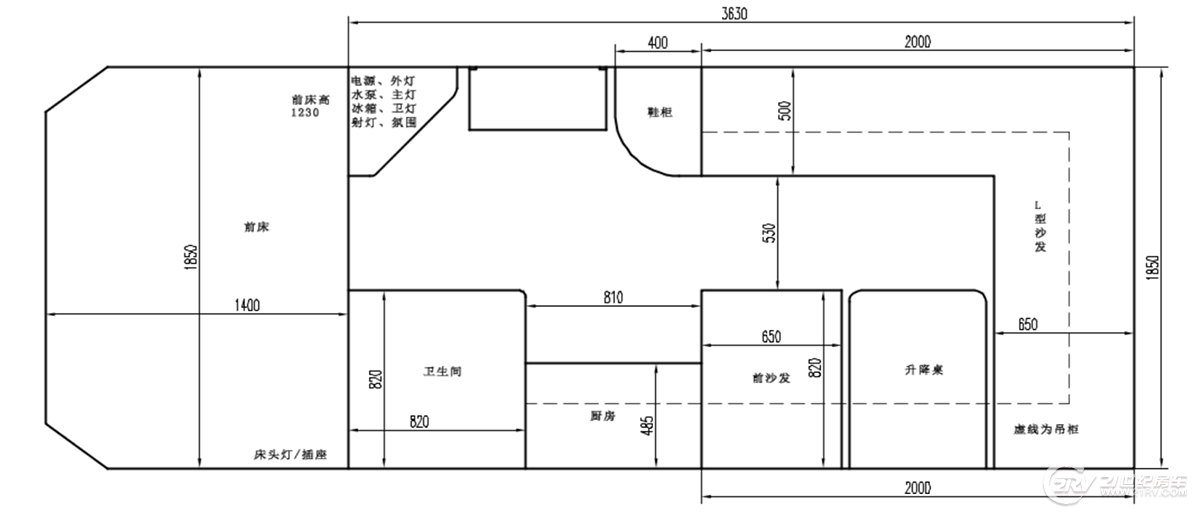
▲内饰布局图一

▲内饰布局图二

室内设计方面,根据平面设计图显示(两款布局),一款新车内饰采用额头双人床设计,卫生间前置,厨房位于车尾,客厅是双人对坐式卡座沙发,另外还有一组边座沙发。另一款新车内饰采用额头床+后置L型沙发+中前置卫生间+厨房+单排卡座沙发布局。从配置单上可以看到新车标配90升净水箱、90升灰水箱、额头1850×1400(mm)双人床、100Ah电池、68升冰箱、1000W逆变器、24寸电视机等配置。
对于一款不足20万元的自行式C型房车,作为租赁版车型使用基本上能够满足出行需求,如果作为家庭长期使用车型,那么,还是需要加装不少设备的。我们现在还没有看到具体的实车样式,总体来说这个价格很有竞争力。(上图中的配置仅供参考,具体原车配置以实车为准。)
商家名称:保定中金博朗房车公司
咨询电话:0312-2199180
作者:王海龙
2019-08-19
作者:王尊豪
2019-04-08
作者:王海龙
2018-10-19
作者:穆森
2018-09-13
作者:王尊豪
2018-09-05
作者:王海龙
2018-08-13
作者:王海龙
2018-03-15
1.微信扫描二维码添加好友
2.请标注“有车”或“无车”